項目名稱: 北京市昌平區職業技術學校
項目類別: 綜合布線,多媒體網絡教室
驗收時間: 2008年8月
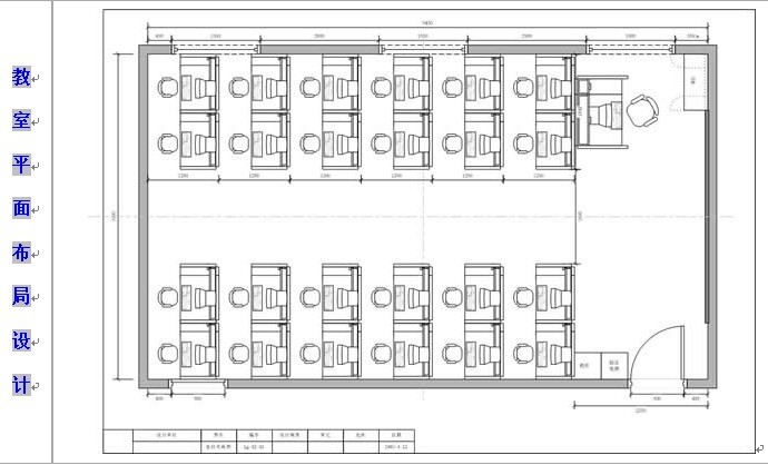
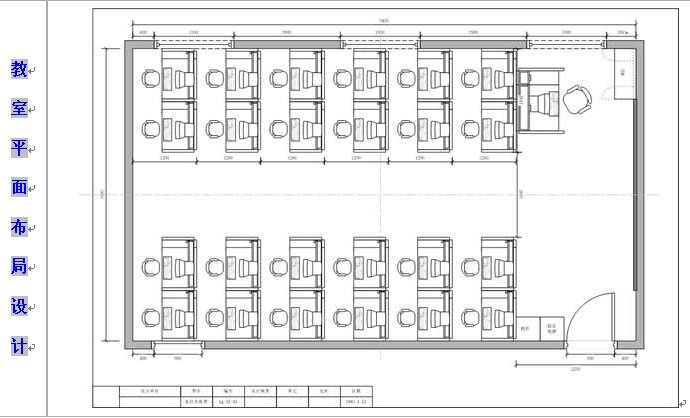
工程規模: 信息點共220個點
工程簡介: 實現了教師服務器5套,學生機110臺,綜合布線系統共計22個信息點